Paramount Boulevard-1
Paramount Boulevard-1
Paramount Boulevard-1

residential

RERA Registered
RERA ID: PRM/KA/RERA/1268/378/PR/070622/004967

Paramount Boulevard-1

by Paramount Constructions

PossessionApril 2027Bedrooms2/3 BHKs

Temple Road, Vani Vilas Mohalla, Mysuru, Karnataka

Paramount Constructions

Developer

Project Overview

Possession
April 2027
Launch Date
March 2022
Total Units
25

About the Project

Boulevard is located opposite to Roost Hotel, Hunsur Road, Vijayanagar 1st Stage, Mysuru. Boulevard by Paramount Constructions offers 25 spacious 2&3 BHK flats, With G+3 floors. This will be a congestion free living space. It is located in the heart ...

Amenities

Swimming Pool
Gym
Security

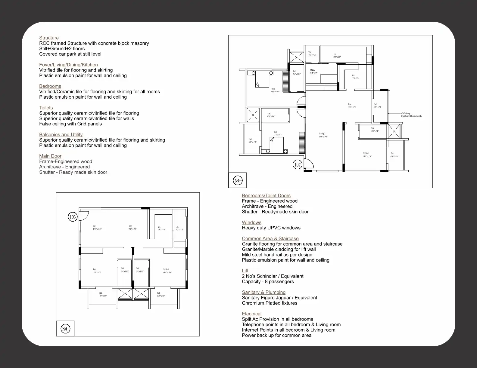
Paramount Boulevard-1 Floor Plans & Layout

Floor plan

Properties in Paramount Boulevard-1

No inventory listed for this project

As soon as owners and agents list homes in this complex, they'll appear here.

Locality & Connectivity

education

2 nearby

  • colleges

    Nearby

  • schools

    Nearby

leisure

3 nearby

  • malls

    Nearby

  • restaurants

    Nearby

  • shopping areas

    Nearby

utility

1 nearby

  • hospitals

    Nearby

Top Agents for Paramount Boulevard-1

Pro iconAdd me to this project

No top agents listed yet for this project.

Be the first one to get featured as a top agent.

About the Developer

Paramount Constructions

Developer / Promoter

Your Dream Property
Starts Here

Fill out the form and let PropHunt.ai match you with the perfect commercial or residential space in Paramount Boulevard-1

  • Verified Properties Only
  • Direct Builder Connection
  • Free Site Visit Assistance
  • Best Price Guarantee
87/200

By submitting, you agree to our Terms & Privacy Policy

Discover nearby projects around Paramount Boulevard-1

More about this Location

Where is Vontikoppal located in Mysore?

Vontikoppal is a prominent and well-established residential locality situated in the northern part of Mysore, Karnataka. It is strategically positioned near key areas like Yadavagiri, Jayalakshmipuram, and Gokulam, offering a blend of serene living with excellent connectivity to the city's central hubs and amenities.

What types of properties are available for sale in Vontikoppal?

Vontikoppal offers a diverse range of residential properties, including independent houses, spacious villas, and modern apartments. The locality is known for its upscale living options, catering to various preferences and budgets, making it attractive for both families and individuals seeking quality housing in Mysore.

How well is Vontikoppal connected to other parts of Mysore?

Vontikoppal boasts excellent connectivity to various parts of Mysore. It is well-served by the city's public transport network, including local buses, and has easy access to major arterial roads. This ensures convenient commuting to Mysore Railway Station, Mysore Airport, and other significant commercial and recreational areas.

What amenities and facilities are available for residents in Vontikoppal?

Residents of Vontikoppal enjoy a comprehensive range of amenities and facilities. The locality is home to reputed educational institutions, advanced healthcare centers, supermarkets, banks, and various recreational spaces. Its green surroundings and peaceful atmosphere contribute to a high quality of life with all essential services readily accessible.

Are there any notable residential projects in Vontikoppal?

Yes, Vontikoppal and its vicinity feature several notable residential projects. Paramount Grandeur by PARAMOUNT is a completed project offering 2 & 3 BHK homes. Paramount Boulevard-1, also by Paramount Constructions, is an ongoing project with 2 & 3 BHK flats. Additionally, Pramur Estonia by Pramur Constructions is another completed apartment project in the area.

What are the nearby attractions and landmarks around Vontikoppal?

Vontikoppal is conveniently located near several of Mysore's popular attractions. Residents can easily access the iconic Mysore Palace, the Mysore Zoo, and the beautiful Brindavan Gardens. Its proximity to cultural and historical sites, along with various temples, adds to its appeal, offering ample leisure and entertainment options.

Is Vontikoppal considered a good place for families to live?

Vontikoppal is highly regarded as an excellent residential area for families. It provides a safe, tranquil, and family-friendly environment with access to good schools, well-maintained parks, and essential services. The community-oriented atmosphere and availability of amenities contribute significantly to a comfortable and fulfilling family life.